Проект перепланировки Профессионально в Краснодаре

Услуга архитектора-проектировщика В Краснодаре при создании проекта перепланировки Можно ли самостоятельно создать и узаконить проект перепланировки жилого или нежилого помещения? Вполне, если вы располагаете достаточным уровнем знаний и опытом работы в данной области и свободным временем на беготню по организациям В таком случае проект отнимет у вас не только много времени, сил и денег. ВЫГОДНО ОБРАТИТЬСЯ к грамотному квалифицированному специалисту, который не только окажет помощь в составлении проекта перепланировки помещения, но и проконсультирует по всем интересующим вопросам. Вам необходимо лишь позвонить нам и уточнить стоимость и срок исполнения необходимой вам услуги. ОБЕСПЕЧИВАЕМ в кратчайшие сроки: ^ самую низкую цену на рынке услуг; ^ безвозмездную экспресс- консультацию по телефону; ^ беспроцентную рассрочку платежа; ^ ускорение оформления всех документов, при необходимости. НА ВЫСШЕМ УРОВНЕ - помощь в составлении проекта перепланировки помещения; - работа архитектора над созданием проекта уже выполненной перепланировки и запланированной; - согласование изменений в проекте перепланировки в пожарной службе; - узаконивание всех изменений с учетом всех изменений в регламенте и существующем законодательстве. Всего один звонок, и вы получите весь спектр услуг от группы специалистов с высшим архитектурно - строительным образованием.
- Регион: Краснодарский край
- Город: Краснодар
- Район: Карасунский
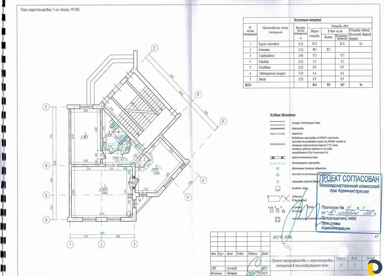
- Адрес: Карасунский внутригородской округ, микрорайон Хлопчато-бумажный Комбинат, ул. Васнецова, 44
- Цена: 6200р
На карте


